Zum Hauptinhalt springen Zur Suche springen Zur Hauptnavigation springen

Begehbarer Kleiderschrank Dachschräge PARIS - ohne LED

Spezifikationen
VPE: 1 Stück Schranksystem, zerlegt
erweiterbar: ja, auf Ihren Raum anpassbar
LED Beleuchtung: nicht im Profil integrierbar (1teilig)
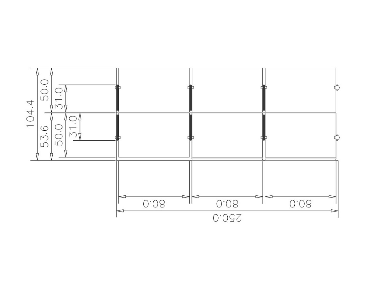
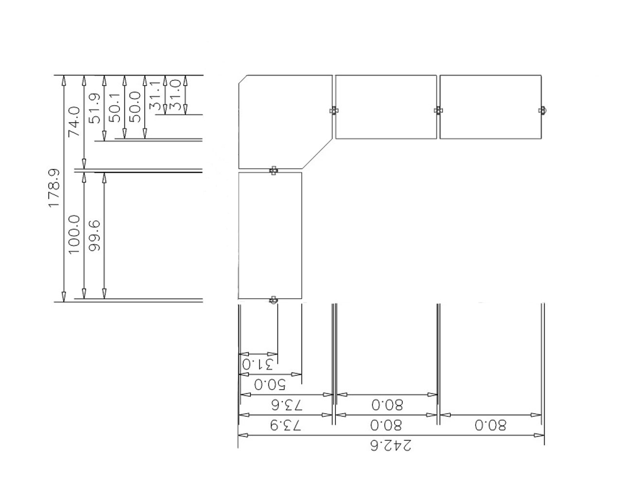
Breite: R/M/L ca. 242,5 x 282,5 x 250,0 cm
Höhe: 138,0 cm - 296,0 cm
Tiefe: 50,0 - 53,9 cm
Farbe: Weiß matt, Oberfläche Miniperl
Material Böden: 6 mm ESG-Glas satiniert und 19 mm Spanplatte, melaminharzbeschichtet - dadurch sehr widerstandsfähig
Material Beschläge: Zinkdruckguss
Material Kleiderstange: eloxiertes Aluminium
Material Korpus + Front: 19 mm Spanplatte, melaminharzbeschichtet - dadurch sehr widerstandsfähig
Material Profil: eloxiertes Aluminium
Material Zarge: 12,5 mm melaminharzbeschichtete Spanplatte
Schubladen Anzahl: 2 Stück
Schubladenauszug: Soft-Close Unterflur-Teilauszug mit Griffleiste - Selbsteinzug und Dämpfung
Schubladenzargen: Montage der Zarge und Front erfolgt über Exzenter und Holzdübel. Sie sind dadurch dauerhaft stabil. Vorteil der Exzentermontage: Die Verbindung kann problemlos wieder gelöst werden um z. B. die Front zu tauschen.
Sperrgut: Ja
Hersteller Schranksystem: FRANK Schranksysteme GmbH & Co. KG, Hoffmannstr. 6a, 32105 Bad Salzuflen, info@frank-schranksysteme.de
Produktlinie: Soft
Produktinformationen

Unser Kleiderschrank PARIS ist das perfekte Schranksystem für das Schlafzimmer mit Dachschrägen.


Mit unserem innovativen Dachschrägenadapter können die Trägerprofile an jeder Dachneigung befestigt werden. Die viel gescholtenen Nachteile von Dachschrägen - schräg zulaufende Decken und Wände, dadurch fehlende Stellflächen für Schränke - gehören mit unseren Schranksystemen der Vergangenheit an.


Mit unserer einzigartigen Technik, LED Beleuchtung in die Trägerprofile zu integrieren, verleihen Sie Ihrem Schranksystem das besondere Extra. Ein beleuchteter Kleiderschrank sieht nicht nur gut aus, sondern setzt auch Ihre Kleidung ins perfekte Licht.


Wählen Sie Ihre Wunschkombination:
  • ohne Beleuchtung - weil bei Ihnen vorhanden
  • im Trägerprofil Vorderseite - keine zusätzliche Raumbeleuchtung notwendig
  • im Trägerprofil Hinterseite - zur optimalen Schrankausleuchtung
  • im Trägerprofil beidseitig - für eine optimale Schrank- und Raumbeleuchtung. Bei dieser Art der Beleuchtung werden keine weiteren Leuchtkörper und auch keine aufwendige Installation von Wand- bzw. Deckenleuchten benötigt.

Die einzelnen Funktionselemente wie Böden, Kleiderstangen und Schubladenschränke lassen sich stufenlos an den Trägerprofilen befestigen. Alle Schubkastenelemente sind mit hochwertigen Unterflurauszügen mit Selbsteinzug und Dämpfung ausgestattet.

Mit den umfangreichen Systemkomponenten kann der Kleiderschrank jederzeit ergänzt werden. Ihren Gestaltungswünschen sind somit fast keine Grenzen gesetzt.


Materialien:
Profile und Kleiderstangen: eloxiertes Aluminium
Schränke: Holzspanplatte, Oberfläche melaminbeschichtet
Holzböden: Holzspanplatte melaminbeschichtet
Halter: Zinkdruckguss alu matt lackiert


Bitte beachten Sie:
Alle angegebenen Maße sind circa Maße. Wir weisen auf mögliche technisch bedingte Toleranzen hin. Der Stellfuß steht seitlich 15 mm über. Bitte bei den Maßketten berücksichtigen.


Selbstmontage mit Aufbauanleitung

Infos & Hilfe

DIESES PRODUKT
Im Schrankplaner öffnen
PLANUNGSSERVICE
Wir übernehmen das
WIR SIND FÜR SIE DA
Jetzt Kontakt aufnehmen
Kundenfeedback
Kundenstimmen Gesamtnote: Sehr gut!